En Shi
Slipping Minds Researches Architectures About









BIOTIANTAH

Year: 2023
Status: Completed
Typology: Architecture (Renovation of Apartment)
Program: Residence
Floor: 67u
Location: Tokyo, Japan
Construction: Shobi, PeakHunt
Partner: ES

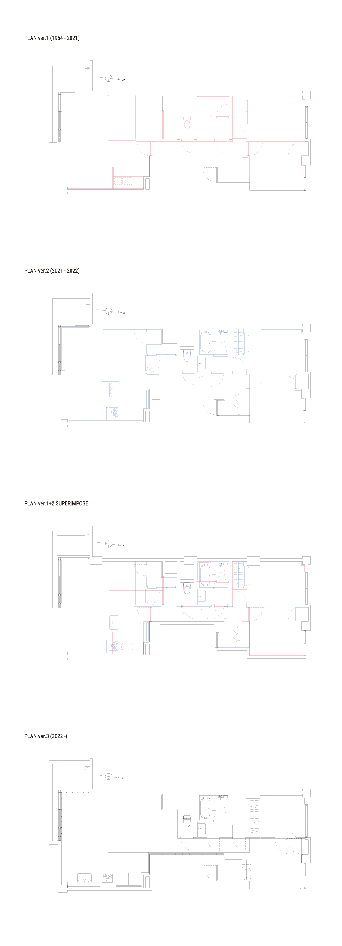
BIOTIANTAH is an attempt to translate the research, PROJECT STONBOROUGH―which is based on the Stonborough Villa―into a physical space by renovating an apartment.




The renovated apartment included two floor plans: the original plan at the time of completion (ver. 1) and a previous renovation plan (ver. 2). In alignment with PROJECT STONBOROUGH, the design process began by layering the two plans to identify their differences.