En Shi
Slipping Minds Researches Architectures About









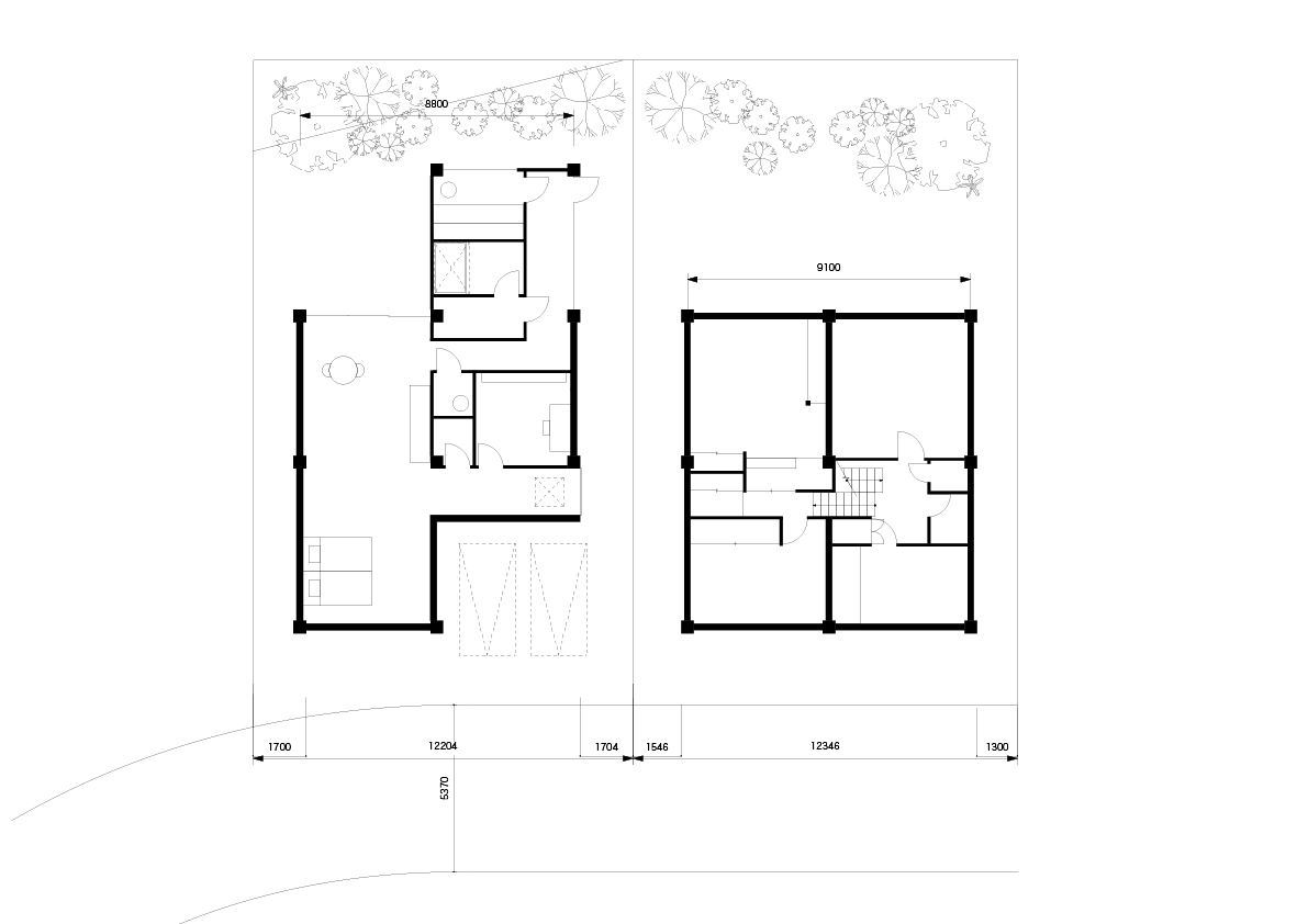
Villa D

Year: 2024 -
Status: Design Development
Typology: Architecture
Program: villa
Area: 270‡u
Floor: 98‡u
Location: Tokyo, Japan
Partner: ES

Villa D is currently being designed as an annex featuring a study, bedroom, and sauna on an experimental urban-planning site in Tokyo.